Добро пожаловать на http://vipplan.ru

Випплан Ефремов - это тысячи проектов домов в нашем каталоге!

Вы всегда сможете найти для себя проект дома вашей мечты! Даже если этого не случилось, мы готовы в любую минуту предложить проект индивидуального дома.

Забыли пароль?
Вы еще не регистрировались?

Перейдите по ссылке ниже на страницу регистрации.

Регистрация...

Внимание!!!

В проектную документацию могут быть внесены изменения любой сложности, в соответствии в Вашими пожеланиями!

Полезные статьи

Дом это прекрасное вложение

Современный рынок недвижимости диктует свои правила. Цены на землю и недвижимость в Ефремове постоянно растут и вынуждают по-другому смотреть на покупку собственного дома. Не только со стороны получения удобного, благоустроенного жилья, но и со стороны капитализации и инвестировании своих средств...

Комбинированные дома

Посмотрите, насколько далеко шагнула архитектура за последние десятилетия. Сколько изменилось в облике современных городов. А задумывались ли наши родители, о том что они увидят необыкновенные небоскребы и элитные многоквартирные дома, чьи фасады напоминают обруганную капиталистическую действительность. У людей появилась возможность построить дом за городом и в тишине на природе, реализовать любые дизайнерские фантазии. Те, кто может позволить себе частный дом, не ограничены финансами. Для многих частный дом – это показатель их материального благополучия, поэтому никто из них не хочет испол...

Проекты домов и коттеджей > Каталог проектов домов > Проект двухэтажного жилого дома в стиле hi tech Vg2374

Проект двухэтажного жилого дома в стиле hi tech Vg2374

Проект двухэтажного жилого дома в стиле hi tech
Зарегистрируйтесь

Проект № Vg2374


Техническое описание
Общая площадь: 230.5 м2
Жилая площадь: 125.3 м2
Высота здания: 9.32 м
Размеры дома: 10.26м×16.63м
Кол-во комнат: 6
Цокольный этаж: нет
Гараж: нет
Мансарда: нет

Kонструкция
Фундамент: Ленточный монолитный ж/б
Перекрытия: Монолитная ж/б плита
Материал стен: Керамоблок

Архитектурный раздел
АР+КР - 64 000 (Со скидкой 20%)
Модель проекта индивидуального двухэтажного жилого дома с размерами здания 10,26 x 16,63 м. Наружная отделка здания – штукатурка, плитка. Фундамент – ленточный монолитный ж/б. Наружные стены – керамические блоки, утеплитель, облицовка штукатуркой или плиткой. Внутренние стены и перегородки – керамические блоки. Пол 1 и 2 этажей - пол по монолитной ж/б плите. Крыша плоская. Эксплуатируемая кровля. Окна — металлопластиковые, витражное остекление.
Генплан застройки участка / Паспорт проекта 7000 руб / 10000 руб
Инженерный раздел (полный) 115500 руб
Смета на строительство 57750 руб
Теплотехнический расчет материалов стен Бесплатно
Стоимость проекта со незначительнми изменениями 74200 руб
Стоимость проекта со средними изменениями* 91600 руб
Стоимость проекта со значительными изменениями** 96200 руб

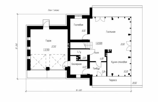
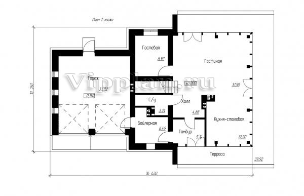
План первого этажа


Тамбур — 5,14 кв м
Холл — 4,88 кв м
Кухня — 12,2 кв м
Гостиная — 31,50 кв м
Спальня — 8,92 кв м
Гараж — 37,92 кв м
С/у — 3,24 кв м
Бойлерная — 6,49 кв м

Проект двухэтажного жилого дома в стиле hi tech

Проект двухэтажного жилого дома в стиле hi tech

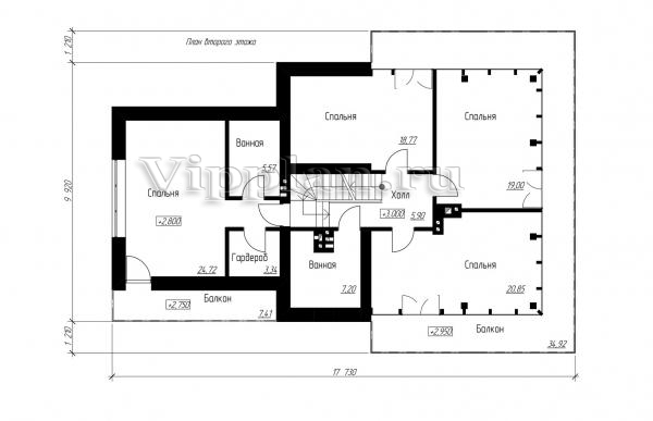
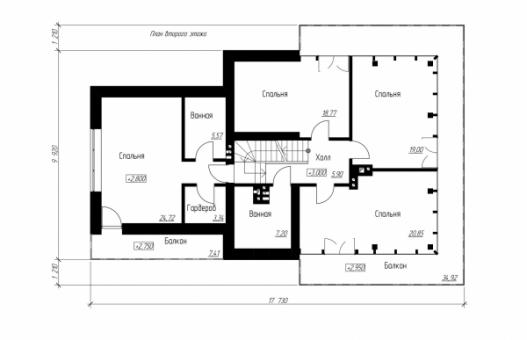
План второго этажа


Холл — 5,9 кв м
Спальня — 20,85 кв м
Спальня — 19,00 кв м
Спальня — 18,77 кв м
Спальня — 24,72 кв м
Ванная — 5,72 кв м
Гардероб — 3,34 кв м
Ванная — 7,20 кв м
Балкон — 7,41 кв м
Балкон — 34,92 кв м
Проект двухэтажного жилого дома в стиле hi tech Проект двухэтажного жилого дома в стиле hi tech Проект двухэтажного жилого дома в стиле hi tech Проект двухэтажного жилого дома в стиле hi tech

Модификации проектов

Внесение изменений и привязка к участку строительства

В любой из проектов от компании VIPplan - Ефремов по вашему желанию могут быть внесены изменения в материалы стен, материалы наружной отделки дома, а также будет произведена адаптация проекта под конкретный регион строительства (с учетом грунтов региона, геологических особенностей вашего участка и местных климатических условий) - БЕСПЛАТНО !!! (кроме проектов со скидкой и проектов наших партнеров).

Любой из проектов, размещенных на сайте efremov.vipplan.ru мы можем выполнить из требуемых вам строительных материалов: ячеистый бетон (газобетон, пеноблок), керамоблок, кирпич, шлакоблок, бетонный блок, дерево (брус, клееный брус), каркасная технология (деревянный каркас, металлокаркас (ЛСТК)).

Фасад дома и его наружную отделку так же возможно выполнить с применением различных облицовочных материалов: структурной штукатурки, (с утеплителем и без), сайдингом (пластиковый или металлосайдинг), фиброплитами, кирпича.

 
6 Избранные
проекты

Доставка проектов по России: Москва (Московская область), Санкт-Петербург (Ленинградская область), Краснодар, Ростов-на-Дону, Ставрополь, Сочи, Волгоград, Новосибирск, Белгород, Брянск, Воронеж, Саратов, Хабаровск, Астрахань, Нальчик, Владикавказ, Екатеринбург, Тюмень, Самара, Нижний Новгород, Казань, Пермь, Уфа, Челябинск, Красноярск, Ханты-Мансийск, Иркутск, Курган, Оренбург, Омск, Томск, Барнаул, Новокузнецк, Кемерово, Абакан, Чита, Якутск, Южно-Сахалинск, Петропавловск-Камчатский и страны ближнего зарубежья: Белоруссия, Украина, Казахстан