Добро пожаловать на http://vipplan.ru

Випплан Ефремов - это тысячи проектов домов в нашем каталоге!

Вы всегда сможете найти для себя проект дома вашей мечты! Даже если этого не случилось, мы готовы в любую минуту предложить проект индивидуального дома.

Забыли пароль?
Вы еще не регистрировались?

Перейдите по ссылке ниже на страницу регистрации.

Регистрация...

Внимание!!!

В проектную документацию могут быть внесены изменения любой сложности, в соответствии в Вашими пожеланиями!

Полезные статьи

Окна в доме

От хорошего стеклопакета зависит почти 50% теплостойкости всего дома. Ведь на проемы в окнах приходится до 45% тепловых потерь дома. Поэтому хорошие стеклопакеты не пропускают тепло из комнаты и должны противостоять проникновению ветра, влаги и холода с наружной стороны....

Купить готовый проект дома или заказать индивидуальный?

Перед началом строительства дома возникает необходимость в проекте дома и тут встает вопрос: Купить готовый проект дома или заказать индивидуальный на заказ? Каждый из вариантов по своему хорош и имеет как свои плюсы так и минусы...

Проекты домов и коттеджей > Каталог проектов домов > Проект дома с 3-мя спальнями Vg1363

Проект дома с 3-мя спальнями Vg1363

Проект дома с 3-мя спальнями
Зарегистрируйтесь

Проект № Vg1363


Техническое описание
Общая площадь: 137.75 м2
Жилая площадь: 74.33 м2
Высота здания: 8.08 м
Размеры дома: 10.62м×10.42м
Кол-во комнат: 5
Цокольный этаж: нет
Гараж: нет
Мансарда: есть

Kонструкция
Фундамент: Свайно-ростверковый
Перекрытия: Деревянные балки
Материал стен: Бетонные блоки

Архитектурный раздел
Конструктивный раздел
АР+КР - 52 000 (Со скидкой 20%)
Проект индивидуального одноэтажного жилого дома с мансардой, размерами 10,62 х 10,42 м. Наружная отделка здания – облицовочный кирпич. Цоколь – клинкерная плитка. Кровля –металлочерепица. Фундамент – свайно-ростверковый. Наружные стены: керамзитные блоки, экструдированный пенполистерол, облицовочный кирпич. Внутренние стены и перегородки – керамзитные блоки. Отделка вентканалов и дымоходов – клинкерная плитка. Пол первого этажа – пол по грунту. Чердачное перекрытие - по деревянным балкам с использованием теплошумоизоляционных материалов типа «URSA» в межбалочном пространстве. Крыша многоскатная. Окна металлопластиковые, выполненные по индивидуальному заказу.
Генплан застройки участка / Паспорт проекта 7000 руб / 10000 руб
Инженерный раздел (полный) 69000 руб
Смета на строительство 34500 руб
Теплотехнический расчет материалов стен Бесплатно
Стоимость проекта со незначительнми изменениями 61550 руб
Стоимость проекта со средними изменениями* 71900 руб
Стоимость проекта со значительными изменениями** 74700 руб

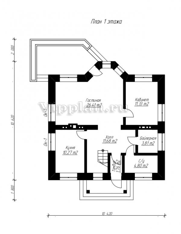
План первого этажа


Тамбур — 1,76 кв м
Холл — 11,68 кв м
Гостиная — 26,41 кв м
Кухня — 10,27 кв м
Кабинет — 11,33 кв м
Бойлерная — 3,81 кв м
С/у — 4,80 кв м

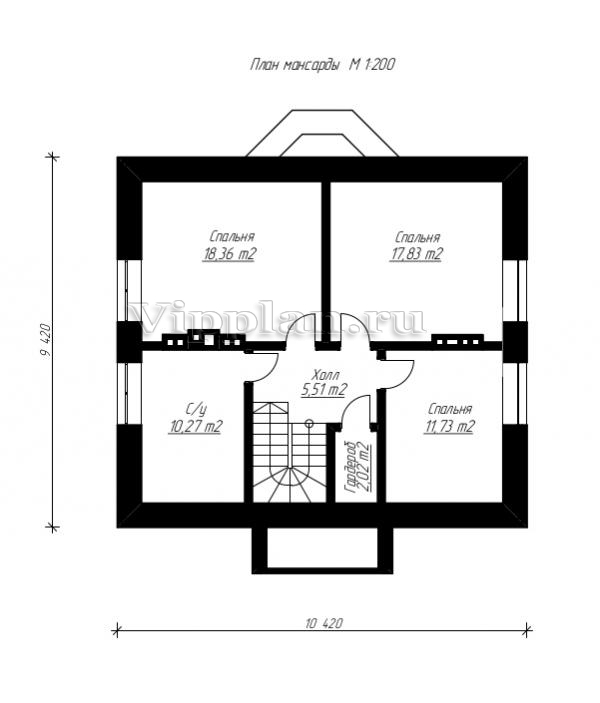
План мансардного этажа


Холл — 5,51 кв м
Спальня — 18,36 кв м
Спальня — 17,83 кв м
Спальня — 11,73 кв м
С/у — 10,27 кв м
Проект дома с 3-мя спальнями Проект дома с 3-мя спальнями Проект дома с 3-мя спальнями Проект дома с 3-мя спальнями
Внесение изменений и привязка к участку строительства

В любой из проектов от компании VIPplan - Ефремов по вашему желанию могут быть внесены изменения в материалы стен, материалы наружной отделки дома, а также будет произведена адаптация проекта под конкретный регион строительства (с учетом грунтов региона, геологических особенностей вашего участка и местных климатических условий) - БЕСПЛАТНО !!! (кроме проектов со скидкой и проектов наших партнеров).

Любой из проектов, размещенных на сайте efremov.vipplan.ru мы можем выполнить из требуемых вам строительных материалов: ячеистый бетон (газобетон, пеноблок), керамоблок, кирпич, шлакоблок, бетонный блок, дерево (брус, клееный брус), каркасная технология (деревянный каркас, металлокаркас (ЛСТК)).

Фасад дома и его наружную отделку так же возможно выполнить с применением различных облицовочных материалов: структурной штукатурки, (с утеплителем и без), сайдингом (пластиковый или металлосайдинг), фиброплитами, кирпича.

 
6 Избранные
проекты

Доставка проектов по России: Москва (Московская область), Санкт-Петербург (Ленинградская область), Краснодар, Ростов-на-Дону, Ставрополь, Сочи, Волгоград, Новосибирск, Белгород, Брянск, Воронеж, Саратов, Хабаровск, Астрахань, Нальчик, Владикавказ, Екатеринбург, Тюмень, Самара, Нижний Новгород, Казань, Пермь, Уфа, Челябинск, Красноярск, Ханты-Мансийск, Иркутск, Курган, Оренбург, Омск, Томск, Барнаул, Новокузнецк, Кемерово, Абакан, Чита, Якутск, Южно-Сахалинск, Петропавловск-Камчатский и страны ближнего зарубежья: Белоруссия, Украина, Казахстан